Piazza Dante, 72 14022 Castelnuovo Don Bosco (AT)

Terreno edificabile ad Albugnano (Asti)

Str. Vicinale Castagnole,
Albugnano,
14022,
Asti
€ 68.000

Terreno edificabile ad Albugnano (Asti)

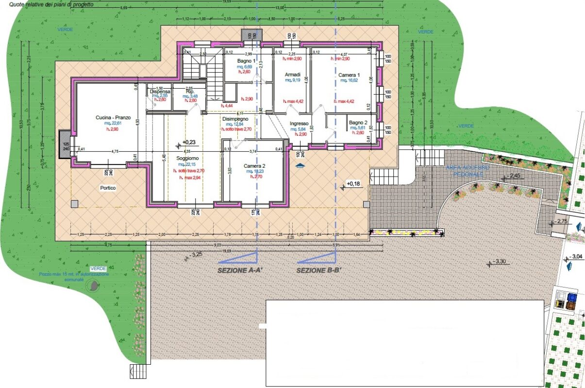
Posizionato in collina, con vista panoramica, proponiamo un lotto di terreno edificabile per civile abitazione. L’appezzamento di terreno, di complessivi mq. 1.660, ha una superficie coperta realizzabile di 780,50 m³ (equivalenti a circa 260 mq.). Attualmente esiste già un progetto approvato per la costruzione di una villa singola (vedi foto allegate), ma in alternativa si può valutare per la costruzione di una villa bifamiliare. Maggiori informazioni e approfondimenti contattando la nostra agenzia.

PANORAMIC LAND WITH APPROVED VILLA PROJECT PANORAMAGRUNDSTUECK MIT GENEHMIGTES VILLEN BAUVORHABENPosizionato in collina, con vista panoramica, proponiamo un lotto di terreno edificabile per civile abitazione. L’appezzamento di terreno, di complessivi mq. 1.660, ha una superficie coperta realizzabile di 780,50 m³ (equivalenti a circa 260 mq.). Attualmente esiste già un progetto approvato per la costruzione di una villa singola (vedi foto allegate), ma in alternativa si può valutare per la costruzione di una villa bifamiliare. Maggiori informazioni e approfondimenti contattando la nostra agenzia.

PANORAMIC LAND WITH APPROVED VILLA PROJECT PANORAMAGRUNDSTUECK MIT GENEHMIGTES VILLEN BAUVORHABEN

Indirizzo: Str. Vicinale Castagnole

Città: Albugnano

Provincia: Asti

Cap: 14022

Regione: Piemonte

Stato: Italia

Riferimento: Terreno Albugnano

Prezzo: 68.000€

Stanze: 1660

Box: 1

Piano: Terra

Piani: 0

Rifinitura Esterna: Intonaco

Vista: Collina

Tipo di struttura: Cemento Armato

Nessun virtual tour per questa proprietà

Calcola il tuo mutuo

Contattaci oggi

Le nostre Migliori Proposte

Copyright © 2026 Media Service Italia SEO & Web Design by Media Service Italia. Hosted by Media Hosting Italia